Property Information
For Lease: 105,000 SF
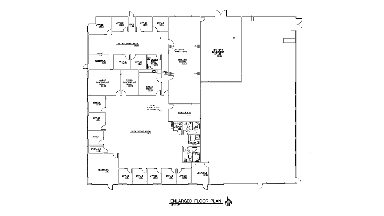
Coming to market in Q2/Q3 of 2026, this beautiful industrial space is less than 1 mile from I-84 and under 2 miles from the Micron Technology campus. Featuring a spacious +/-16,000 SF office space, 750 SF of dedicated shipping space, and 1.5 acres of fenced yard space, this property is ready to be your all-in-one shop!
Highlights
Status: For Lease
TYPE: Concrete Tilt
SQ. FT. FOR LEASE:
105000
BUILDING SIZE:
165000 sq ft
DIVISIBLE:
LOT SIZE: 10.6 acres
ZONING: IL
YEAR BUILT: 2008
18668



