2700 E. Lanark St. | Meridian, Idaho
Property Information
- Easily accessible to the I-84 just 1 mile to the property and 15 minutes to the Boise Airport.
- Year Built: 2007
- Parking: 2.73/1,000 SF (Striped Stalls)
- Construction Type: Metal
- Drive-Ins: 5
- Zoning: I-L - Light Industrial
Highlights
Status: Current Holdings
TYPE: Insulated Metal Panel
SQ. FT. FOR LEASE:
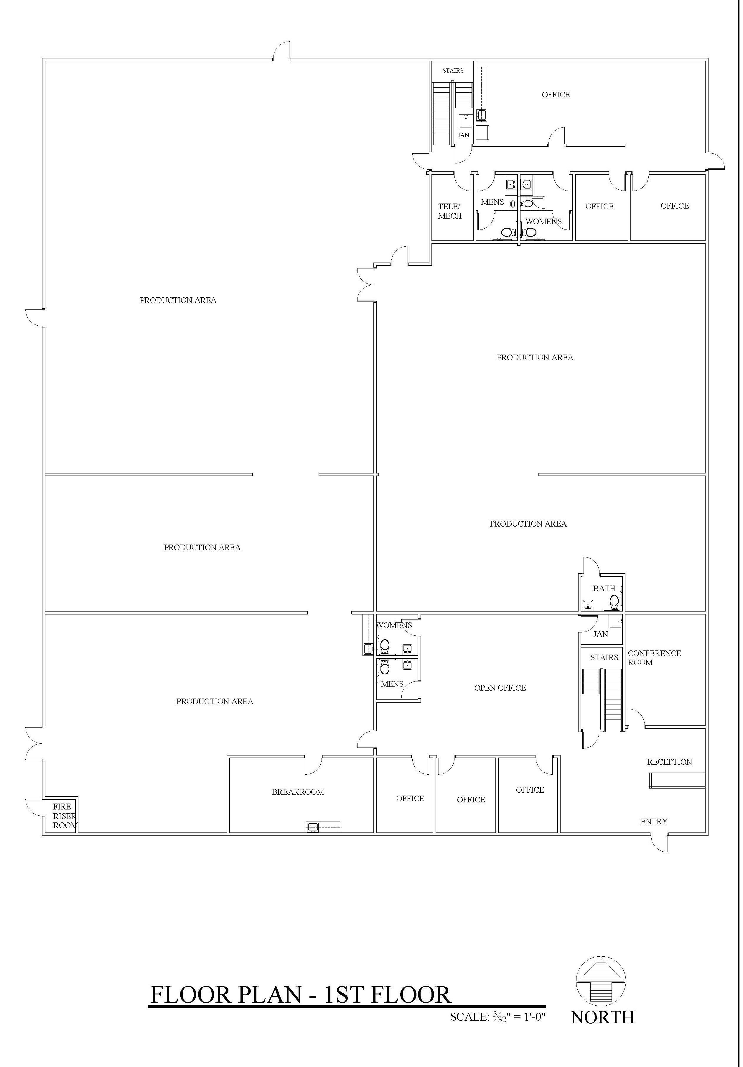
BUILDING SIZE: 22651 sq ft
LOT SIZE: 1.355 acres
ZONING: I-L - Light Industrial
YEAR BUILT: 2007





